免费获得3份不同
户型设计和预算方案
我要专业空气检测
报名即有机会获得由专业机构提供的免费甲醛监测一次,如需监测其他空间,独家享受优惠
装修有保障免费获得3份不同
户型设计和预算方案
我要专业空气检测
报名即有机会获得由专业机构提供的免费甲醛监测一次,如需监测其他空间,独家享受优惠
装修有保障【导读】我们终其一生 都在寻找两个东西 一个是价值感 一个是归属感 价值感来源于被肯定 而归属感来自被爱 而这些与空间 密不可分 因为家是身心的归属 空间是凝固的爱 Spaceisfrozenlove Case| 久在繁华里·复得返自然 ...


我们终其一生
都在寻找两个东西
一个是价值感
一个是归属感
价值感来源于被肯定
而归属感来自被爱
而这些与空间
密不可分
因为家是身心的归属
空间是凝固的爱
Space is frozen love
Case | 久在繁华里·复得返自然
地址 | 江苏泰州海陵区
团队 | 丰子设计私宅定制
面积 | 268m²
开工 | 2023.9
设计师 | 徐丰文
本案位于江苏省泰州市海陵区,地理位置远离市中心,是一栋建筑面积约为268平方的联排别墅,周边环境优美、设施齐全,临近高架,日常通勤没什么负担,是高质量的别墅居住区。别墅南北两侧都有个不小的院子,是栋被绿意和阳光围绕的房子,可以感受清晨日出的温暖,夜晚星河下的虫鸣,独享隔绝喧嚣的宁静。
设计围绕“快节奏”工作与“慢生活”理想之间的平衡,以及“价值感”“归属感”与“家”的紧密性关联性进行探讨,构筑满足居住者精神和内需的品质空间。
生活的空间,应当是有温度的空间,布局、动线、搭配、色彩都是为了传达空间的温度,让人与之形成连接互动,提升生活品质。中国人理想的生活,大部分是在完善基础设施配套的前提下远离闹市喧嚣的,而本案完美的将这一特质融合进设计,满足了会客、西厨、中厨、亲子娱乐、绿植等多重生活期待,也拓展了空间舒适、开放,将阳光与绿意延伸入室内,让空间感受更加丰富、有层次。

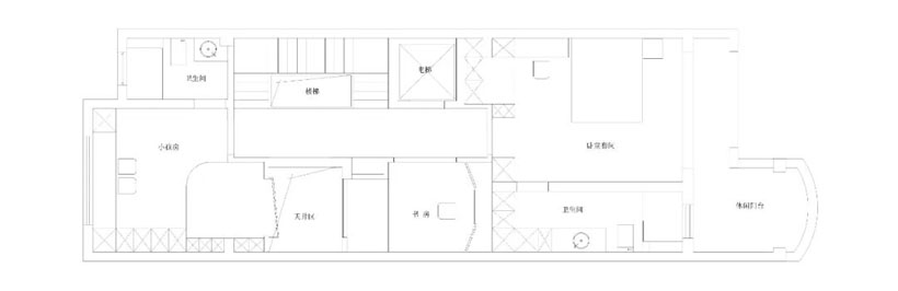
▲一层平面图

▲客厅
本案独特的建筑地形,让下沉式客厅得以实现,客厅空间以浅色为主色调,综合极简的风格以及大面积留白,打造平静舒适的氛围,南侧的大落地窗给了客厅绝佳的采光,米白色沙发是家人聊天休憩的场所,下沉式设计让每个入座的人都能感到平等和放松,这种说不清道不明的安全感,更容易拉进彼此距离。

▲客厅
沙发背后的CD墙带着青春的记忆,忍不住幻想:某天朋友来家里聚餐,经过这面墙,惊讶的发现你们喜欢同一个歌手,你们青春留下的轨迹在这一刻有了重合。

▲客厅
白色木饰面柜门电视墙搭配黑色烤漆井字隔板的电视柜,视觉上扩大电视尺寸,也让背景不单调,且有层次递进。

▲客厅
黑色烤漆网状隔断,既保障了安全性,也让客餐厅在视觉上更加通透,有连续性,从而扩大了客餐厅的空间感。

▲客厅

▲客厅

▲客厅

▲客厅
沙发南侧设计了个FALOART悬挂式壁炉,打破客厅固有的格局,让阳台成为了独特的视觉焦点。当然其实用性也不遑多让,落地窗隔着雨雪,舒适的沙发,喝着热茶,围着炉子烤火,外面的世界再精彩繁华,也抵不过这一刻的浓浓烟火气。让自己从繁忙的生活中解脱出来,放下压力,回归自然与宁静。

▲客厅
沙发旁的小茶几上放着老式的CD播放器,放上音乐,跟随灵魂、跟随心声,便去到向往之处。在音乐中探索韵律的张弛,成为空间视觉艺术无处不在的载体。

▲餐厅
阳光透过天井的玻璃打在墙面,留下斑驳的影子,如水流、如细纱,变换幻莫测,格外有趣。我们总是不自觉追逐光的印记,它有种治愈的力量,也是家里最让人瞩目的装饰画,每天、每时、每刻都是不一样的风景。光随心动,景由心造,时间在这一刻仿佛静止。

▲餐厅
圆桌+单椅的常规配置,在圆弧吊顶的映衬下,反而显得休闲又自在。

▲餐厅

▲餐厅
餐厅西侧的不锈钢镜面是餐厅的点睛之笔,延续了空间感的同时,也丰富了其趣味性。

▲餐厅

▲餐厅

▲楼梯间
换鞋区倚墙是意大利Gufram的破碎镜Broken Mirror,搭配蓝色异形方凳,以视觉错觉营造出软硬交错的虚实世界。一整墙的收纳盒都是主人收藏的经典球鞋,在灯光的运用下,更像一面艺术墙。

▲楼梯间
第三级楼梯使用木饰面同色系木饰面作为踏步,给收纳柜纵向以延伸,给楼梯以点缀,在视觉上达到完美平衡。

▲楼梯间

▲西厨

▲卫生间干区
宝格丽大白花大理石制作的洗手池,异形的镜子,从细节上提升着整体空间的质感。

▲卫生间干区

▲过道

▲天井

▲天井

▲天井

▲天井
这些光影透过天井,成为设计师手中的刻刀,随着自然的韵律与墙面肌理交织,散射到空间中,变得立体而灵动。

▲天井

▲厨房

▲入户门

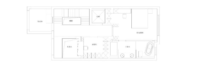
▲二层平面图

▲二楼过道
大面积的纯色让过道的几何折叠感更能得到凸显,宛如艺术馆般的建筑美感很好的被展现出来。

▲书房
天井区域尽可能的保留大面积的玻璃窗,用「借景」的方式让室内随着每天不同光照下光影的深浅及流动,围而不限,无拘通融。

▲书房
哑光黑木饰面让视觉更容易集中在书桌和娱乐设备收纳区,最新的娱乐配套设备带来的震撼感没有几个人能抗拒。

▲小孩房

▲小孩房
大面积使用哑光黑木饰面,局部点缀高饱和度的橙色木饰面,卧室显得沉稳内敛却不失温暖和活力。

▲二楼卧室套房
卧室套房有着周全的配套设施,步入式更衣室、卫生间、休闲阳台等。大面积纯色漆面和深灰色的软包主导了空间的材质,使空间向上打开,拓展延伸立面的纵深尺度,视觉上感受到松弛和舒适。

▲二楼卧室套房

▲二楼卫生间
浅色柔光砖墙面和浅灰色地面让卫生间显得干净又温暖,配套洗衣机、烘干机,节约了清洗衣物的时间和步骤。

▲三层平面图

▲三楼过道
围栏把空间切割、分解,创造出不同的视觉感官。用解构主义来强调整个空间的趣味性与设计感,在这种序列中达到一种平衡。

▲三楼卧室
套房原木色木饰面、浅咖色格栅搭配哑光黑木饰面床头背景,让空间色彩有了柔和的过渡,温暖和舒适贯穿始终。

▲三楼卧室
套房三楼设计斜面吊顶设计,是在原建筑基础上,最大化利用了空间,暗藏灯带的设计,让顶面更加通透而有设计感,整个空间有种向上延伸的力量。

▲三楼卧室套房

▲三楼衣帽间
衣帽间在靠窗位置预留了书桌,满足主人偶尔的工作所需。

▲三楼卫生间
浅色柔光砖和黑色瓷砖的搭配,一深一浅,黑白的基调与线性简洁的设计,让空间语言得到更好的诠释。
丰子设计私宅定制 D-INTERIORS

设计师 | 徐丰文
Fengwen Xu
丰子设计 | 专注于私宅别墅12年
Focused on private villas for 12 years
2024-2025TOP10影响力设计奖获奖设计师
4OUNDER40(省区)当代设计杰出青年(2024-2025年)
2025-2026设计泰州大奖·方案类金奖
2025-2026设计泰州大奖·年度影响TOP10
第十六届江苏省“泰山”星•空间杯室内设计大赛金奖
-- The end --
免责声明:网站的部分文章内容及图片来源互联网,如有侵权请联系我们删除。