新房历时4个月装修完工,仅花13万,都夸效果可以当样板间了!
2018-03-08 来源:泰州装饰招标网
新房扣除公摊之后,套内面积75平,整个装修前后历时4个月,在这之前一直纠结的是风格的确定,最后还是选择了现代简约风格。看到目前的效果仅花了13万,大家都夸简直可以当样板间了,哈哈!现在给大家晒晒,正在通风当中~~

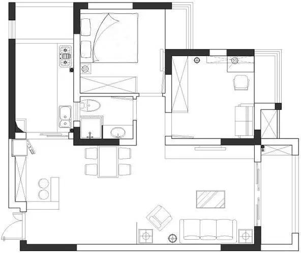
户型图,经过修改之后,整体布局变得更好,通风和采光都不错;

客厅角度拍摄的入户,没有做整面的柜子,而是设计的低矮鞋柜,更加的通透,而与客厅之间也是采用的雕花面板作为隔断,主要还是考虑的风水问题;

客厅,壮戏比较简单,顶部灯光的设计也都是采用的暖色系列,沙发背景墙的一圈马赛克处理,效果不错,搭配的黑色真皮沙发,也是非常的柔软舒适;

电视背景墙,采用的软包加镜面的设计,时尚大气,尤其是在灯光效果下,非常的漂亮;

入户进门厨房的区域,设计的小吧台和餐边柜,用作收纳和平日的小憩,还是不错的,提前预留的冰箱位置也是恰到好处;

餐厅,最吸引眼球的是背景墙的马赛克处理,一直从墙面延伸到顶部,整体效果非常不错,以沙发背景墙相呼应;

厨房,面积不大,装修也比较简单,为了增加室内的采光和通风,在墙面设计的一整扇窗户,让空间不至于太压抑,黑白色为主色调的橱柜搭配,也是经典大气;

最满意的是厨房采用的黑框方格玻璃滑门,耐脏易清洁,价格也还是比较实惠的;

洗漱台,安装在卫生间的外面,做到了干区的彻底分离,也方便了日常的梳洗清洁,整体效果也是简单时尚;

儿童房,进门就是摆放的沙发床,墙面采用的竖条纹壁纸作为装饰,为了避免空间的过于单调,墙面设计的照片墙,简约时尚;

另一侧墙面则是设计的一体式书柜,给孩子提供了一个学习的场所,都是木工现场定制的,造型简易,但实用性不错;

主卧,泰州装修风格保持了一致,墙面同样选择的壁纸作为装饰,效果清新舒适,定制的衣柜,款式新颖大方,嵌入式的设计也节省了空间,符合小户型的需求,效果不错。
-- The end --
免责声明:网站部分文章内容及图片来源互联网,如有侵权请联系我们删除。

